Investiční příležitost Sušice u Uherského Hradiště, 1,2 ha
Informace o aukci
| Výměra: | 12 815 m2, Podíl: 1/1 |
| Katastrální území: | Sušice u Uherského Hradiště |
| Okres: | Uherské Hradiště |
| Kraj: | Zlínský kraj |
| Nájemní smlouva: | ano |
Realitní makléř
Popis aukce
Nabízíme k prodeji pozemky v katastrálním území Sušice u Uherského Hradiště, okres Uherské Hradiště ve Zlínském kraji o celkové výměře 12.815 m2.
Jedná se o parcely ve výlučném vlastnictví, parc. č.: 607, 609, 642 zapsané na LV 670.
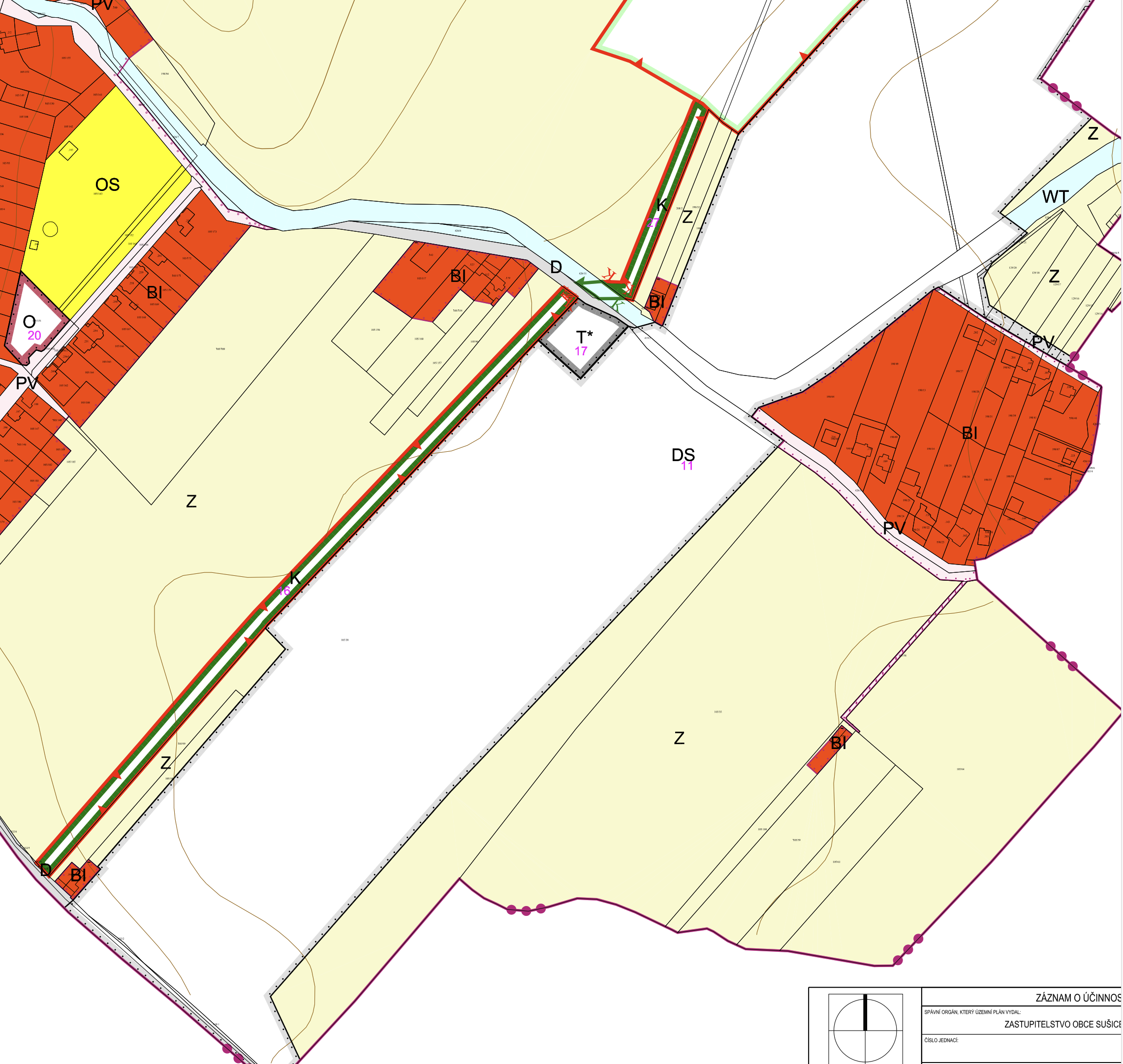
Pozemky leží jižně od Sušice v těsné blízkosti obce. Pozemky jsou nyní dle platného územního plánu vedeny jako plocha Z – zemědělská půda.
Přes pozemky vede dle územního plánu lokální biokoridor.
V současné době byly na pozemcích dokončeny Komplexní pozemkové úpravy.
Na pozemky je uzavřena pachtovní smlouva s výpovědí k 1.10.2025. Smlouvu Vám rádi zašleme k nahlédnutí.
Stáhněte si informační materiály k pozemkům v odkazu níže.
Prohlídky nabízených pozemků nenabízíme. Pozemky je možné navštívit individuálně. Každý zájemce je povinen si zjistit skutečný současný stav pozemku.
V případě zájmu mne neváhejte kontaktovat.
tel.: 776 686 497
mail: ib@chenen.cz
Ivana Balážová
Přehled parcel
| Parcelní číslo | Výměra (m2) | Podíl | Druh pozemku | LV |
|---|---|---|---|---|
| 607 | 5509 m2 | 1/1 | orná půda | 670 |
| 609 | 1737 m2 | 1/1 | orná půda | 670 |
| 642 | 5569 m2 | 1/1 | orná půda | 670 |
















JAK FUNGUJEME